A-symetrische kap
Het ontwerp van de a-symetrische kap is kenmerkend voor deze ecologische schuurwoning. De woning is opgebouwd in het Paal&Balk Houtbouwsysteem, waardoor grote openheid en flexibiliteit in de plattegrond ontstaat. De leefruimtes aan de achterzijde van de woning, die via de grote glasvlakken en de veranda doorlopen naar buiten, versterken dit effect en halen de natuur naar binnen.
De schil van de woning wordt uitgevoerd in een combinatie van horizontale en verticale houten gevelbekleding, afgewisseld met grote transparante glasvlakken.
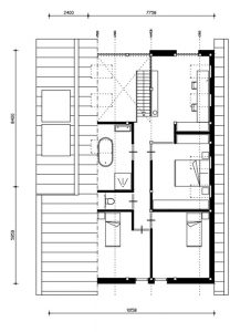
De plattegrond kent een functionele voorzijde met een entree, kantoor en (tuin)berging, waar de achterzijde van de woning zich opend naar de omliggende weilanden. De trap wordt halfopen als meubel uitgevoerd en is de enige scheiding tussen zit- en eethoek. De vide boven de eethoek geeft de woning extra licht, lucht en ruimte. Op de verdieping kan er vanaf de loft over de vide naar buiten worden gekeken. De verdieping biedt verder plaats aan twee kinderkamers, een master-bedroom en een badkamer met apart toilet.
Type afgebeelde woning(en): Schuurwoning
Prijsindicatie v.a./m3: 580 euro / m3
Bouwwijze: Finnhouse Paal & Balk HoutbouwSysteem
Architect: Robin de Pagter, Finnhouse Houtbouw
Afmetingen
Bebouwd oppervlakte: 146m2
Afmeting woning lengte x breedte: 14,4 x 10,2m
Oppervlakte begane grond: 110m2
Oppervlakte verdieping(en): 95m2
Minimumgrootte kavel/opzet kavel geschikt: Aanpasbaar
VOOR MEER INFORMATIE
Finnhouse Houtbouw B.V.
073 611 10 05
info@finnhouse.nl








