Robuuste entree en glazen achtergevel
Deze moderne schuurwoning is een exclusief Livingstone ontwerp met veel aandacht voor lichtinval en strakke belijning. Het ontwerp heeft twee gezichten; enerzijds oogt de woning ingetogen en rustig, anderzijds oogt de woning royaal en open dankzij de vele raampartijen. De robuuste entree is samen met de glazen achtergevel de blikvanger van deze villa. Het contrasterend kleurgebruik bij de royale dakoverstekken en de entree creëren een speelse uitstraling van dit unieke schuurwoningontwerp.
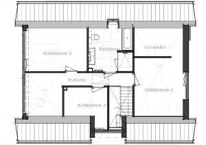
De woning is te betreden via de imposante entree. Vanuit hier heeft onze opdrachtgever tot de technische ruimte en de woonkamer met aansluitende leefkeuken met vide. Op de eerste verdieping zijn drie slaapkamers gecreëerd, waarvan 1 met inloopkast vide. Ook is op de ze verdieping de bad–kamer gerealiseerd. Via de vlizotrap is de vliering bereikbaar.
Type afgebeelde woning(en): Schuurwoning
Prijsindicatie v.a./m3: Op aanvraag
Bouwwijze: Hoogwaardig prefab casco met traditionele afwerking
Architect: Maarten Kemperink – Livingstone
Afmetingen
Bebouwd oppervlakte: Ca. 106m2
Afmeting woning lengte x breedte: ca. 12m. x 8,8m.
Oppervlakte begane grond: ca. 106m2
Oppervlakte verdieping(en): ca. 106m2
Minimumgrootte kavel/opzet kavel geschikt: Naar wens opdrachtgever
VOOR MEER INFORMATIE
Livingstone Villabouw
076 573 57 35
info@livingstone.org








