Aan de rand van Wierden, in Overijssel, is er door middel van een CPO project (collectief particulier opdrachtgeverschap) een mooi wijkje verrezen. Nijhoff Architecten heeft samen met de bewoners ‘het Zenderink’ ontworpen en laten bouwen. Alle zes de woningen dienen in dit cluster familie van elkaar te zijn qua verschijningsvorm, materiaal-en kleurgebruik, dus een wijk met eenheid. Geert Nijhoff vertelt er met plezier meer over en benadrukt dat vooral de burgerparticipatie zo fijn en bijzonder aan dit project is.
Tekst: Marije Smit | Fotografie: Nicole Tanke
Hoe is het project ‘het Zenderink’ ontstaan?
“Rust, ruimte en groen zijn door de gemeente opgestelde kernwaarden waaraan de wijk in Wierden moest voldoen. In eerste instantie had de gemeente het stuk grond in twee, hele grote kavels ingedeeld. Het werd niet verkocht omdat de kavels echt te groot waren. Er waren ook meerdere plannen, zoals voor een grote boerderij bestaande uit meerdere woningen. Niets kwam van de grond en uiteindelijk zijn wij er als architectenbureau samen met een aantal lokale belangstellenden mee aan de slag gegaan.
Op ons initiatief is er een groep geïnteresseerden gevormd die heel graag op deze fantastische plek wilden wonen. Vervolgens heet de gemeente een aantal uitgangspunten opgesteld waarbinnen we te werk zijn gaan. Belangrijke uitgangspunten waren onder andere: de gemiddelde kavelgrootte 550 m2, energiezuinige woningen en het was de bedoeling een wijkje te ontwikkelen in de vorm van ‘een nieuw erf’. De woningen zijn volledig naar wens van de bewoners ontworpen en dus allemaal verschillend, maar toch passend in het geheel.”
Met een CPO project bouw je gezamenlijk met je buurt. In het voortraject leer je elkaar al goed kennen. Op sociaal gebied ontstaat er al een buurt voor je er woont en dat is belangrijk.
Is CPO bouwen in opkomst?
Collectief particulier opdrachtgeverschap op het Zenderink in Wierden hebben wij op eigen initiatief gedaan. Op dit moment werken wij als bureau aan meerdere CPO projecten. Ik denk dat dat komt doordat wij het wél leuk vinden om aan een CPO project mee te werken én dat wij ervaring in de regio hebben en ze je dan als vanzelf weten te vinden voor dergelijke projecten. CPO is erg leuk, maar kost wel veel tijd en ontwikkelaars en aannemers zien er daardoor sneller van af. Wij werken graag met veel verschillende partijen samen en samen brengen we zo’n project tot een goed einde. De dynamiek tussen en met bewoners is leuk en lastig tegelijk. Je moet iedereen dezelfde kant op krijgen en er moet toch ook het gevoel zijn dat iedereen zijn eigen wensen kwijt kan. Voor ons is het prettig dat we bij het gehele ontwerpproces zijn betrokken, tot de lantaarnpaal aan toe.”
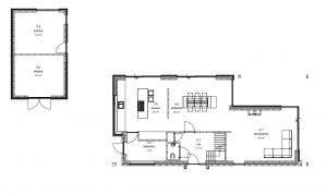
Uitgelicht: de typische schuurwoning D, eigentijds met sobere en strakke lijnen

Hoe ga je eenheid brengen bij zo’n project?
“Het project beslaat zes woningen, waarvan er een 5-tal zeer energiezuinige woningen door ons zijn ontworpen. Wij hebben het totale proces begeleid. Het aantal kavels was bepaald door de gemeente en ook ontworpen. Er moest veel nadruk op de gemeenschappelijke voortuinen en de straat komen, met een vriendelijk pleintje.
Het zijn allemaal verschillende woningen en toch passend in het geheel, mede door het terugkerende gebruik van zwart hout. Elke ontwerp is individueel met de toekomstige bewoners tot stand gekomen, en over de omringende groene ruimte en het erf zijn gezamenlijk afspraken gemaakt.”
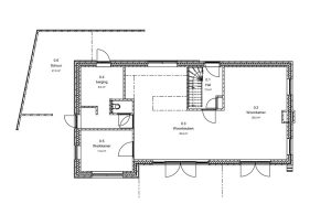
Uitgelicht: schuurwoning J, modern strak zadeldak met gemodificeerd hout aan de buitenzijde

Wat zijn de basisuitgangspunten voor het project geweest?
– Levensloopbestendig bouwen (met indelingen en voorzieningen rekening houden met de toekomst);
– Bouwen met verschillende leeftijdsgroepen;
– Samenwerken, grotere betrokkenheid, lagere kosten door gezamenlijk advies en inkoop, samen toekomstige buurt inrichten, alvast goed contact met buren opbouwen;
– Alle woningen dienen in dit cluster familie van elkaar te zijn qua verschijningsvorm, materiaal-en kleurgebruik, dus een wijk met eenheid;
– Woningen hebben verwantschap met boerderijtype;
– Bouwen met respect voor omgeving en landschap;
– Erveninrichting voor gehele cluster, sober en minimaal;
– Wijk met landelijk, groen karakter en groene afscheidingen, dus met respect voor omgeving;
– Inheems beplantingsplan;
– Contacten en hulp gehad met Overijssels Landschap over erveninrichting en toezegging dat zij ook beplantingsplan willen aanleveren
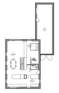
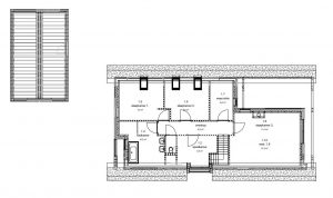
Uitgelicht: schuurwoning W met grote dakoverstek, begane grond en 1e verdieping

De woningen zijn allemaal verschillende en toch passend in geheel. Wat zijn de overeenkomsten?
“Er is ontworpen met de bewoners, naar ieders wens. Zij gaan er wonen, maar er moet ook gelet worden op de wijk als geheel. Het beeld bij het uitgangspunt was dat er één grotere woning als hoofdgebouw zou komen, met schuurwoningen er omheen. In de praktijk is dat niet helemaal zo gegaan, omdat je toch individuele woningen naar wens van de bewoners ontwerpt. Passend in het landschap er omheen. We hebben een landschapsarchitect ingeschakeld om eenheid te ontwikkelen, in de vormgeving van de buitenruimte. Hier is veel aandacht aan besteed. Net als aan levensloopbestendig bouwen, duurzaamheid (ecologisch bouwen bijv) en de burgerparticipatie.
Het hoofdgebouw, deze woning is groter, is een schuurwoning en de overige woningen komen in sfeer prima bij elkaar. De schuurwoning heeft sobere, strakke lijnen en benadert qua gevoel goed het boerenerf. Als ik door de wijk rijd zie ik individuele, vrijstaande woningen maar je voelt dat het erf bij elkaar hoort. Dat is het mooie aan een CPO project. Je zit van te voren vaak met elkaar om tafel, je leert van elkaar en ziet al voor (en tijdens) het bouwen waar anderen mee bezig zijn. Het is een collectief proces.”
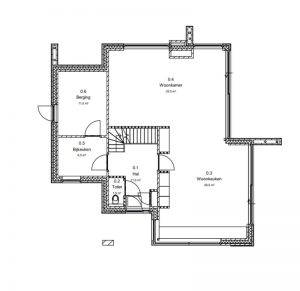
Uitgelicht: schuurwoning K – boerderij type

Welke materialen zijn gebruikt? Hoe duurzaam zijn de woningen?
“De wijk is sowieso gasloos en natuurlijk is er gebouwd met uitstekende isolatiematerialen. Ook is het belangrijk om bij het ontwerpen rekening te houden met de stand van de zon op de kavel. Zo hoef je in bepaalde ruimtes niet extra te verwarmen of juist koelen. Ik vind duurzaamheid een kwestie van nuchter nadenken.
Bij alle woningen komt het rieten dak terug in het beeld, net als het zwarte houtwerk. De tinten in de gevels zijn zo natuurlijk mogelijk gehouden en dat zorgt voor
eenheid.”
Geerts ultieme uitdaging is: opdrachtgevers kritisch en betrokken mee laten denken. Het is zijn overtuiging dat samen ontwerpen leidt tot betere ontwerpen. – Nijhoff
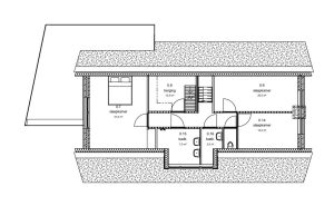
Uitgelicht: Schuurwoning S met een bijgebouw, begane grond en 1e verdieping


















