Een woning volledig afgewerkt met verduurzaamd en zeer onderhoudsarm hout. Het overstek zorgt voor schaduw in de zomer en zon in de winter, maar ook een eigentijdse
veranda. De leefruimte geeft rondom uitzicht over de prachtige tuin.
Het dak ligt mooi op het zuiden en is voor een groot deel gevuld met zonnepanelen en een aantal dakramen.
Een levensloopbestendige woning voorzien van alle gemakken. Transparantie staat centraal. Niet alleen naar buiten, maar ook binnen.
Architect eigen huis heeft veel ervaring met woningen die geheel worden afgewerkt en/of gebouwd met hout. Voor de gevelafwerking kiezen ze dan vrijwel altijd voor verduurzaamde houtsoorten, zoals Plato, Nobelwood of Accoya. Deze houtsoorten zijn nagenoeg onderhoudsvrij, kunnen tot laag bij de grond worden toegepast en ook als vlonder of dakafwerking. Hout als dakafwerking is overigens geen sinecure. Ook de draagconstructie kan van hout, maar dat is natuurlijk een persoonlijke keuze. De houten afwerking zorgt altijd voor een heel natuurlijke uitstraling, van de constructie is uiteindelijk vaak juist niet veel zichtbaar. Architect eigen huis vertelt u graag meer.
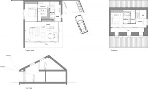
Type afgebeelde woning: Schuurwoning met een twist. Prijsindicatie v.a./m3: 750,- euro/m3
Bouwwijze: Houtskeletbouw – Energie/EPC eigenschappen woning: Energieneutraal, ‘0 op de meter’
Korte opsomming: Passief-huisontwerp, bodemwarmte-pomp, hoge isolatiewaarde, pv-panelen, wtw.
Architect: Architect eigen huis
Bebouwd oppervlakte: 112m²
Afmeting woning lengte x breedte: 9,5 x 11,8m
Oppervlakte begane grond: 84m²
Oppervlakte verdieping(en): 34m²
Minimumgrootte kavel/opzet kavel geschikt: 250m²
VOOR MEER INFORMATIE
Architect eigen huis
071 542 6172
info@architecteigenhuis.nl









