Eco schuurwoning
Het ontwerp van deze ecologische schuurwoning combineert een stedelijk hoofdvolume met een langgerekte laagbouw. De woning kent een gesloten voorzijde en meer open achterzijde, waarbij de ruimtes als het ware in de houten hoofdstructuur van de woning lijken te zweven. Door het open karakter vervaagt de grens tussen binnen en buiten en wordt de natuur de woning in gehaald. De schil van de woning wordt uitgevoerd in een moderne stalen gevelbekleding en een open houten blokprofiel.
De schil van de woning wordt uitgevoerd in een harde, moderne stalen gevelbekleding in combinatie met een open houten blokprofiel.
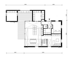
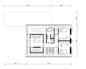
De plattegrond kent een functionele voorzijde met een entree, kantoor en compacte zithoek aan de voorzijde, en een schakering van vides en zwevende ruimtes aan de achterzijde. Beide delen worden van elkaar gescheiden door een functioneel trapmeubel, dat ook als kast wordt gebruikt. Centraal in het ontwerp staat het eten, waar met een ruime zithoek, leefkeuken en buitenkeuken gehoor aan is gegeven. De zwevende master-bedroom boven de keuken vormt de essentie van het ontwerp.
Type afgebeelde woning: Schuurwoning
Prijsindicatie v.a./m3: 550 euro / m3
Bouwwijze: Finnhouse Paal & Balk HoutbouwSysteem
Architect: Robin de Pagter, Finnhouse Houtbouw
Afmetingen
Bebouwd oppervlakte: 160m2
Afmeting woning lengte x breedte: 18,6m x 12,4m
Oppervlakte begane grond: 143m2
Oppervlakte verdieping(en): 82m2
Minimumgrootte kavel/opzet kavel geschikt: Aanpasbaar
VOOR MEER INFORMATIE
Finnhouse Houtbouw
073 611 10 05
info@finnhouse.nl








