Deze energieneutrale woning is opgetrokken uit houtskelet-bouw met een gevelbekleding van houten latten. De voordelen van houtskeletbouw zijn vormvrijheid en een korte bouwtijd. Ook is het een zeer milieuvriendelijk bouwsysteem en kunnen er eenvoudig hoge isolatiewaarden gerealiseerd worden. Net als het bouwsysteem biedt ook de houten gevelbekleding diverse voordelen. Zowel esthetische als technisch. In het ontwerp worden de gevellatten gebruikt om overlappende gevelvlakken te maken waarmee een subtiele plasticiteit ontstaat. Verder worden de latten voor de bovenregels van kozijnen en ventilatieroosters geplaatst. Deze blijven hierdoor beschermd tegen weersinvloeden en worden aan het zicht onttrokken. Het laatste is, met betrekking tot de ventilatieroosters, een belangrijke wens van welstand.
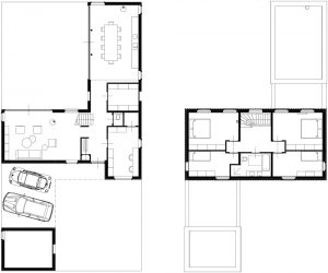
Het huis heeft op de begane grond een woonkamer en een aparte woonkeuken met uitzicht op de tuin. Naast de keuken ligt een voorraadruimte. Aan de voorzijde is een werkkamer die groot genoeg is om later als gelijkvloerse slaapkamer in te richten. De voorraadruimte wordt dan een badkamer die dan, via een doorbraak ter plaatse van de tussenliggende kast, bereikbaar wordt vanuit de slaapkamer. Omdat carport en buitenberging voor het huis zijn geplaatst blijft de tuin verder vrij van bouwsels. Er is nu een kleine boomgaard aanwezig waarvan de bomen te oud zijn om te behouden. Door het herplanten ontstaat de mogelijkheid om een door fruitbomen beschaduwd terras te maken. De slaapkamerverdieping heeft drie slaapkamers, een logeerkamer en een badkamer.
Dit huis is een moderne variant van het dorpswoonhuis, met een hoge en een lage gevel, zoals dat vroeger gebouwd werd in de streek aan beide zijden van de huidige grens met België. Een zeer oud voorbeeld hiervan is de herberg die figureert op het schilderij ‘De Marskramer’ van Jeroen Bosch.
Type afgebeelde woning: Energieneutraal vrij ontwerp
Prijsindicatie v.a./m³: Op aanvraag
Bouwwijze: Houtskeletbouw
Architect: Buro Heim
Bebouwd oppervlakte: 140m²
Afmeting woning lengte x breedte: 13 x 25m
Oppervlakte begane grond: 105m²
Oppervlakte verdieping(en): 75m²
Minimumgrootte kavel/opzet kavel geschikt: Vanaf 600m²
VOOR MEER INFORMATIE
Buro Heim
06 1979 0909
info@buroheim.nl










