De voorgevel van de woning wordt gekenmerkt door de dubbele kopgevel en centrale entree met dubbele deuren. Het leefgedeelte is daarbij herkenbaar aan het grote overstek gedragen door kolommen. De houten draagconstructie is bij de dak overstekken volledig zichtbaar. De onderste daklijn van de vlakke strakke matzwarte dak-pannen, wordt verscherpt door de goot subtiel op te nemen in het dakvlak. De kozijnen hebben, contrasterend met de semi-transparant houten gevels, een donkere warm-bruingrijze kleur.
De dominerende schoorsteen maakt onderdeel uit van de architectuur en is behalve binnen haard ook onder het over-dekte terras bruikbaar.
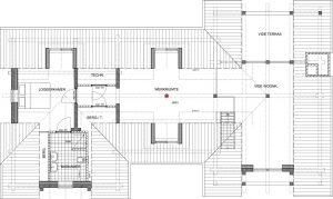
De 2-beukige plattegrond wordt gedeeld door de entree in het midden. Links ervan de meer functionele ruimtes; slaapkamer met badkamer en bijkeuken. Centraal in het midden de keuken met riant uitzicht naar achteren en rechts de woonkamer met geheel vide en zicht op de open kapconstructie. De verdieping is bereikbaar met een open trap in de woonkamer en biedt ruimte voor slaapkamer met 2e badkamer, werkruimte of extra slaapkamer. Een heldere plattegrond met grote ruime en lichte vertrekken, sfeer en gezelligheid door verspringende wanden en afwerking van de voorzetwanden met schijnlogs.
Type afgebeelde woning: Houten logwoning Vierhouten Prijsindicatie v.a./m³: € 600,- incl. BTW
Bouwwijze: Houten constructie en gestapelde massieve logs
Energie/EPC eigenschappen woning, korte opsomming:
Energieneutraal door o.a.:
Warmtepomp met vloerverwarming/ koeling.
Gebalanceerde ventilatie met WTW.
PV panelen op dak bijgebouw.
Driedubbel glas.
Architect: Vidazz – Gert van Dijk
Bebouwd oppervlakte: 180m² incl. overkappingen
Afmeting woning lengte x breedte: ca. 10 x 19,5m
Oppervlakte begane grond: 120m² GO
Oppervlakte verdieping(en): 55m² GO
Minimumgrootte kavel/opzet kavel geschikt: 1200-1500m²
VOOR MEER INFORMATIE
Vidazz
06 5130 8521
vandijk@vidazz.nl









