Deze robuuste Livingstone villa is een moderne vertaling van een bijzondere schuurwoning. Opvallend is de unieke asymetrische kap, die aan de voorzijde deels tot aan de grond doorloopt. Het stijlvolle donkere metselwerk wordt afgewisseld met stijlvolle, houten gevelbekleding. De voorgevel biedt de bewoners veel privacy. De andere gevels zijn voorzien van grote ramen waardoor een open en lichte sfeer in de woning is gegarandeerd.
De imposante uitbouw aan de achterzijde van de woning geeft het ontwerp een karakteristiek uiterlijk. De hoge raampartijen met donkere belijning in combinatie met de houten omlijsting geven de woning een moderne en tegelijkertijd warme uitstraling.
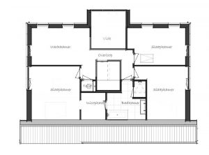
Deze levensloopbestendige woning is ontworpen met een slaap- en badkamer op de begane grond. De woonkamer en royale leefkeuken zijn beide aan de achterzijde van woning gerealiseerd waardoor onze opdrachtgever hier optimaal kan genieten van de tuin. De prachtige vide zorgt hier voor een open en lichte sfeer. Op de eerste verdieping zijn nog drie slaapkamers, een badkamer en een werkkamer gecreëerd. Via een vlizotrap is de bergruimte op de tweede verdieping bereikbaar.
Bij dit exclusieve woningontwerp worden de stijlvolle gemetselde
gevels afgewisseld met fraaie houten panelen. Het hout is qua material en kleur een mooie aanvulling op het geheel en het geeft de woning een warme uitstraling. Als extra accent is ook de gehele uitbouw over de eerste en tweede verdieping voorzien van deze panelen.
Type afgebeelde woning: Vrij ontwerp
Prijsindicatie v.a./m³: Op aanvraag
Bouwwijze: Hoogwaardig prefab casco met traditionele afwerking
Architect: Marco Bakkers – Livingstone
Bebouwd oppervlakte: 227m²
Afmeting woning lengte x breedte: ca. 14 x 10m
Oppervlakte begane grond: ca. 140m²
Oppervlakte verdieping(en): ca. 119m²
Minimumgrootte kavel/opzet kavel geschikt: Naar wens opdrachtgever
VOOR MEER INFORMATIE
Livingstone Villabouw
076 5735 735
info@livingstone.org








