Hoewel vorm en uitstraling wellicht anders doen vermoeden, is de omgeving de basis geweest voor het ontwerp van deze moderne schuurwoning. De asymmetrische kap geeft extra ruimte op de verdieping en een groot dakvlak op het zuiden, waar zonnepanelen kunnen worden gesitueerd. In de noordzijde zijn enkele grote dakvlakken gerealiseerd waardoor natuurlijk licht de woning kan penetreren, zonder gevaar voor oververhitting. Door het openwerken van de gevel ontstaat er een zichtlijn door de woning, naar het achterliggende plassengebied. Leefruimtes op de begane grond en verdieping genieten van deze maximale transparantie naar het achterland, waardoor de natuur naar binnen wordt gehaald.
De woning is voorzien van een open houten gevelbekleding waardoor een bepaalde ritmiek ontstaat in het gevelbeeld.
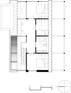
In het ontwerp is gezocht naar een combinatie van open leefruimtes met natuurlijke zichtlijnen (licht, lucht en ruimte) en meer gesloten, private ruimtes. De woning is als het ware verdeeld in een meer gesloten voorste deel, en een opengetrokken achterste deel. Beide functies worden aan elkaar gekoppeld door het ruim opgezette trappenhuis met een tweetal vides welke zorgen voor een horizontale doorsteek in de plattegrond.
De woning is opgebouwd in het Paal&Balk Houtsysteem. Deze vrijdragende vakwerkarchitectuur wordt opgebouwd uit Fins vurenhout. Het is bij uitstek een circulair bouwmateriaal, dat in haar 80-jarige bestaan al veel CO2 heeft opgenomen. Bijkomend is het bosbeheer in Finland een door de overheid gereguleerde zaak van strenge selectie en zorgvuldigheid. De Finse wetgeving is strenger dan het FSC en PEFC keurmerk dat in Nederland wordt gehanteerd.
De houten vakwerkconstructie wordt gevuld met een combinatie van damp-open houtskeletbouwelementen en triple-glas vlakken, hetgeen de woning een energiezuinig en circulair karakter geeft, en tegelijk bijdraagt aan een gezonde woonomgeving.
Type afgebeelde woning: Moderne Schuurwoning
Prijsindicatie v.a./m3: 590 euro/m3
Bouwwijze: Paal&Balk Houtbouw Systeem
Energie/EPC eigenschappen woning, korte opsomming: EPC 0 – EPC 0.4
Architect: Robin de Pagter, Finnhouse Houtbouw B.V.
Bebouwd oppervlakte: 109m²
Afmeting woning lengte x breedte: 13,1 x 9,4m
Oppervlakte begane grond: 94m2
Oppervlakte verdieping(en): 70m2
Minimumgrootte kavel/opzet kavel geschikt: Aanpasbaar
VOOR MEER INFORMATIE
Finnhouse Houtbouw
073 6111 005
info@finnhouse.nl









