Type Sintmaheerd “Enigste in zijn soort”
Deze op maat gemaakte schuurwoning, heeft een prachtige mix van houten en bakstenen gevels. Veel glaspartijen in de boven en onder bouw. Hierbij valt vooral de achtergevel op, badend in zee van daglicht. Zeer ruime zichtlijnen en een praktische indeling in de woning met een heerlijke veranda als verlenging van de woning , voel de ondergaande zon.
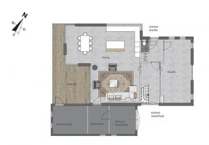
De aangekoppelde studio is geheel geïntrigeerd in de woning. De privacy is gewaarborgd door de afzonderlijke entrees. Wonen en werken in optima forma.
De Esbi Huis woningen worden duurzaam gebouwd en zijn zeer energiezuinig. Standaard wordt een luchtwarmte pomp toegepast. Door een aantal Pv zonnepanelen extra te plaatsen kan een 0-energie woning worden verkregen.
Type afgebeelde woning: Schuurwoning type: Sintmaheerd
Prijsindicatie v.a./m3: € 440,-
Bouwwijze: Houtskeletbouw
Architect: Esbi Huis
Afmetingen
Bebouwd oppervlakte: 220m2
Afmeting woning lengte x breedte: (16,5x13m)
Oppervlakte begane grond: 155m2
Oppervlakte verdieping(en): 102m3
Minimumgrootte kavel/opzet kavel geschikt: 600m3
VOOR MEER INFORMATIE
Esbi Huis Mark Petter
0546 64 39 07
info@esbihuis.nl









