Deze woning is gesitueerd aan de rand van een nieuwbouwwijk
De villa heeft een prachtig uitzicht over het achtergelegen slagenlandschap. Het opvallende element van deze woning is het grote overstekende dak waarvan één zijde schuin naar achteren loopt. Deze dient als zonneluifel voor de glazen puien aan de achterzijde. Ook zorgen deze puien voor genoeg daglicht om het woonvertrek comfortabel te kunnen verlichten.
Voor de linkerzijgevel is er gekozen voor hout. De rechterzijde is uitgevoerd in antraciet baksteen. Deze natuurlijke materialen komen terug in de voor- en achtergevel.
Het verspringen van de bouwvolumes onder de kap zorgt voor een dynamische plattegrond waarbij de woonvertrekken in elkaar overvloeien.
Type afgebeelde woning: Villa
Prijsindicatie v.a./m3: Prijs op aanvraag
Bouwwijze: Traditioneel
Architect: Folkert Bijlsma
Afmetingen
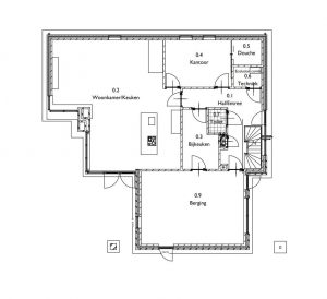
Bebouwd oppervlakte: 220m2
Afmeting woning lengte x breedte: 15.9m x 16.6m
Oppervlakte begane grond: 149m2
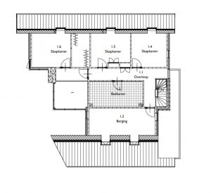
Oppervlakte verdieping(en): 1e verdieping 141m2 • 2e verdieping 81m2 – Totaal = 222m2
Minimumgrootte kavel/opzet kavel geschikt: Op aanvraag / Ontwerp op maat
VOOR MEER INFORMATIE
Groenveste
0522 70 10 16
info@groenveste.nl









